Chief
Flad panel støtte
PCM2306
Chief PCM2306 Brugsanvisning
Her er Chief PCM2306 (Flad panel støtte) brugervejledning. 2 sider på sprog med en vægt på 173,579.0 Mb. Hvis du ikke kan finde svar på dit problem Spørg vores community.
Side 1/2

INSTALLATION INSTRUCTIONS
Chief Manufacturing, a products division of Milestone AV Technologies
8401 Eagle Creek Parkway, Savage, MN 55378
P: 800.582.6480 / 952.894.6280 F: 877.894.6918 / 952.894.6918
8804-000211 RevC
©2009 Milestone AV Technologies,
a Duchossois Group Company
07/09
ALL COMPONENTS MUST BE SECURELY FASTENED TO A
STRUCTURAL MEMBER CAPABLE OF SUPPORTING 4
TIMES THE COMBINED WEIGHT OF ALL COMPONENTS
PLUS THE EQUIPMENT BEING MOUNTED. IF IT CANNOT
SUPPORT THIS WEIGHT, THE STRUCTURE MUST BE
REINFORCED.
THE MAXIMUM WEIGHT TO BE INSTALLED ON THE
MOUNT IS
200
POUNDS (
90.72
KG).
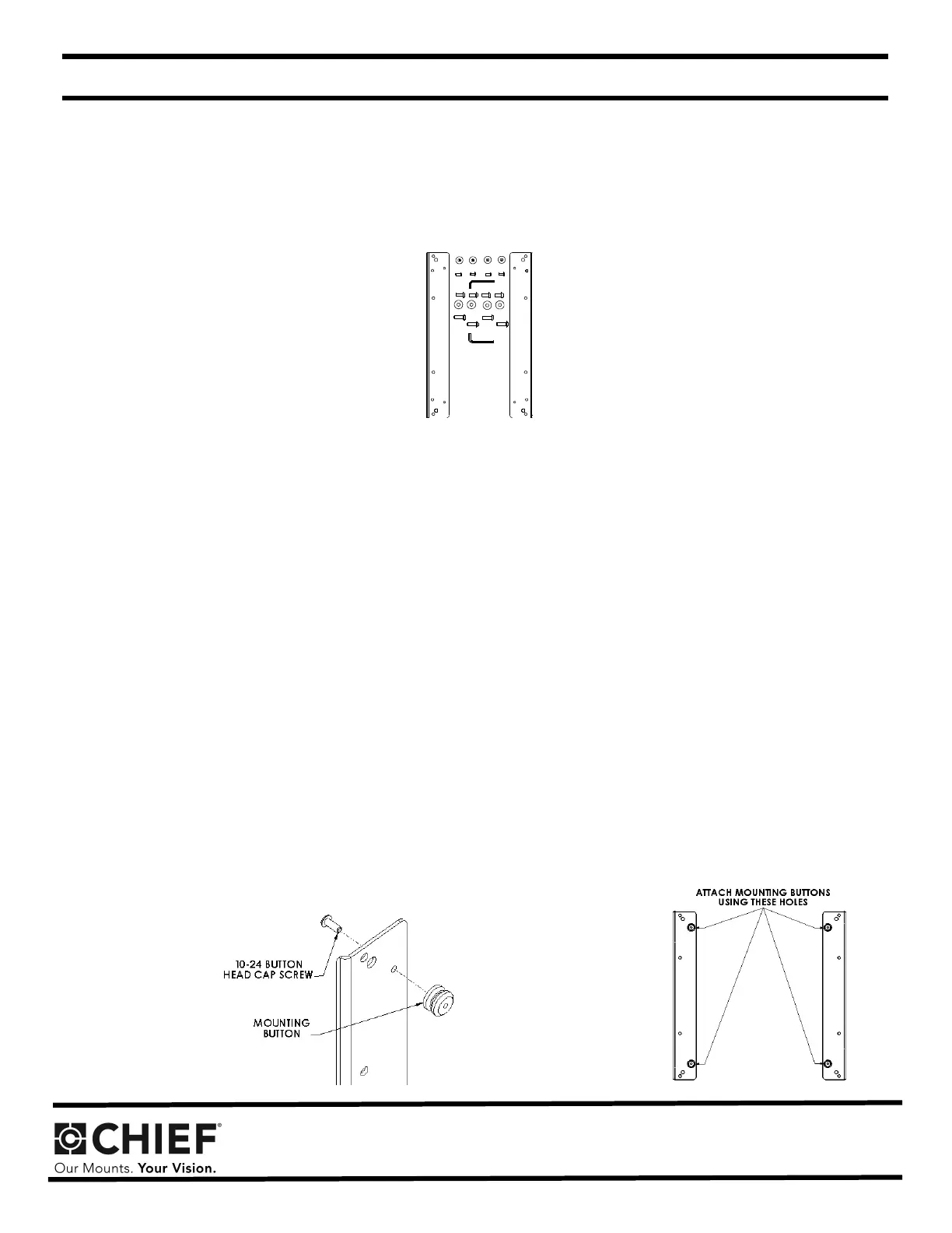
PSB-2306
PLASMA/LCD DISPLAY MOUNTING BRACKET
Prior to assembly, unpack carton completely and verify contents.
If you are missing any of the following components, please contact Customer Service.
(2) Interface Brackets (4) Mounting Buttons - Tapped
(4) 10-24 X .5 Button Head Cap Screws (4) M8 x 25 mm Button Head Cap Screw
(4) .875 x .33 x .375 Nylon Spacer (4) M8 x 20 mm Button Head Cap Screw
(1) M5 Allen Key (1) 1/8” Allen Key
BEFORE PROCEEDING, READ INSTALLATION INSTRUCTIONS COMPLETELY
PLASMA/LCD DISPLAYS ARE EXTREMELY FRAGILE.
1. Using a 10-24 button head cap screw inserted from back side of bracket, secure mounting button,
with chamfered hole of mounting button (larger surface) facing bracket, to bracket (four places) (see
Figure 2 & Figure 3). Make sure bends of interface bracket face away from buttons.
CAUTION!
Figure 1
WARNING!
Figure 2
Figure 3
Problemløsning Chief PCM2306
Hvis du har læst manualen omhyggeligt, men ikke fundet en løsning på dit problem, bed andre brugere om hjælp
Specifikationer
| Bredde: | 414 mm |
| Dybde: | 158 mm |
| Højde: | 875 mm |
| Produktfarve: | Sort |
| Husmateriale: | Metal |
| Monteringstype: | Loft |
| Hældningsvinkelområde: | -25 - 5 ° |
| Skærmstørrelse kompatibilitet: | 42 - 60 " |
| Maksimal vægtkapacitet: | 90.7 kg |
| Maksimal skærmstørrelse kompatibilitet: | 60 " |
| Minimal skærmstørrelse kompatibilitet: | 42 " |
| Montering interface kompatibilitet (min.): | 200 x 200 mm |
| Montering interface kompatibilitet (maks.): | 200 x 200 mm |