Bosch PRA3A6B70K Brugsanvisning
Her er Bosch PRA3A6B70K (Komfur) brugervejledning. 4 sider på sprog med en vægt på 437,679.0 Mb. Hvis du ikke kan finde svar på dit problem Spørg vores community.
Side 1/4

1
*8001268331*
8001268331 020930
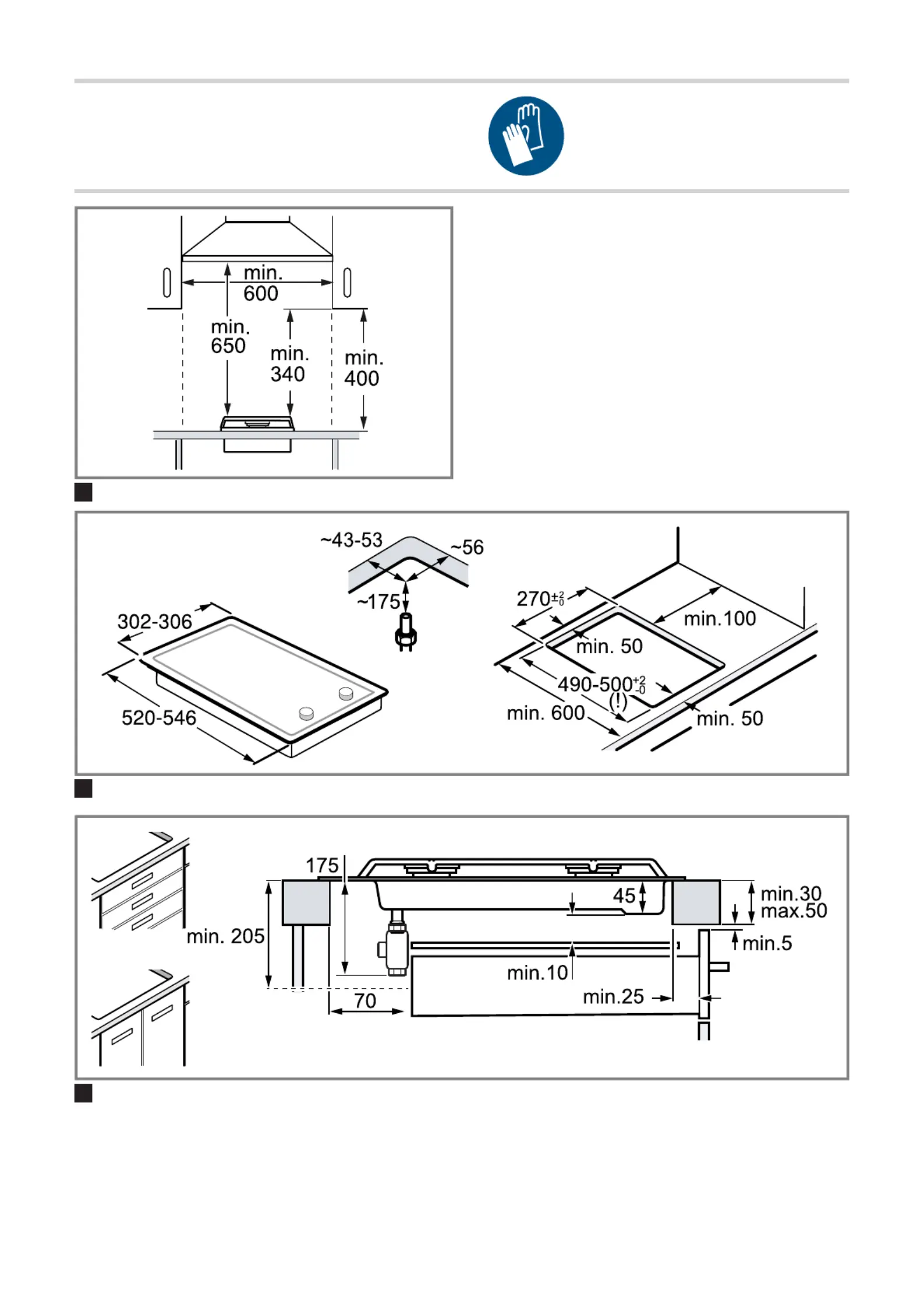
en Installation instructions
1
2
3
Problemløsning Bosch PRA3A6B70K
Hvis du har læst manualen omhyggeligt, men ikke fundet en løsning på dit problem, bed andre brugere om hjælp
Specifikationer
| Mærke: | Bosch |
| Kategori: | Komfur |
| Model: | PRA3A6B70K |